ドローン
■R7 8月22日
最近、ドローンを使用した調査が増えてきております!
外壁調査にて、赤外線を通して撮影することで外壁の浮きやひび割れの程度を調査することができます。
人の目では見つけられないような高い場所や屋根もドローンを使用することで調査が可能となります。
下の写真は実際にドローンを使用し弊社で外壁調査したときの様子になります。国家資格を所有した調査員がドローンを操作し、調査を行います。



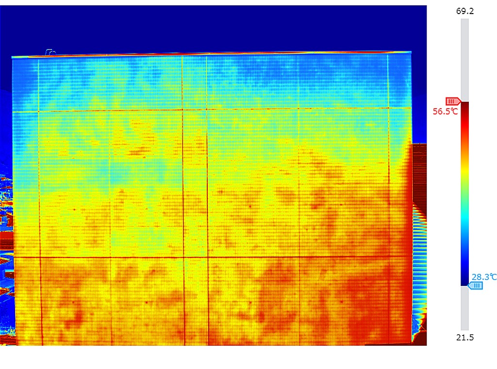
そしてこちらは実際にドローンを使用して撮影した画像になります。
赤外線の温度変化で損傷の程度を解析していきます。


気になる点がございましたらいつでもご相談ください!